HOIST KOREA
Single Girder Hoist
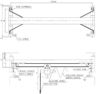
설치도면
표준사양
| Model | Capacity (ton) |
Max span(m) |
Life L(m) |
Speed(m/min) / Motor(Kw) | Approx, Dimensions(mm) | Travelling Wheel (mm) |
Runway Rail (kg/m) |
||||||||
|---|---|---|---|---|---|---|---|---|---|---|---|---|---|---|---|
| Hoisting | Traversing | Travelling | H | A | B | C | E | F | J | ||||||
| HKN-00 | 0.5 | 9 | 6 9 12 |
6/1.2 or 12/2.4 |
16/0.2 or 24/0.4 |
16/0.5x2 or 24/0.75x2 |
705 | 2000 | 1500 | 1100 | 60 | 250 | 650 | 160 | 15 22 |
| 12 | 2500 | 2000 | 1300 | ||||||||||||
| 15 | 3000 | 2500 | |||||||||||||
| HKN-01 | 1 | 9 | 6/1.2 or 12/2.4 |
815 | 2000 | 1500 | 1100 | ||||||||
| 12 | 2500 | 2000 | 1300 | ||||||||||||
| 15 | 3000 | 2500 | |||||||||||||
| HKN-02 | 2 | 9 | 5/1.8 or 10/3.7 |
16/0.5 or 24/0.75 |
980 td> | 2000 | 1500 | 1200 | 700 | ||||||
| 12 | 2500 | 2000 | 1300 | ||||||||||||
| 15 | 3000 | 2500 | |||||||||||||
| HKN-03 | 3 | 9 | 4.5/2.8 or 9/5.5 |
1115 | 2000 | 1500 | 1100 | 650 | |||||||
| 12 | 2500 | 2000 | |||||||||||||
| 15 | 3000 | 2500 | 1200 | 800 | |||||||||||
| HKN-05 | 5 | 9 | 4.2/4.2 or 5.6/5.5 |
1325 | 2000 | 1500 | 1100 | 200 | |||||||
| 12 | 2500 | 2000 | 1300 | ||||||||||||
| 15 | 3000 | 2500 | |||||||||||||
| HKN-10 | 10 | 9 | 3/6 or 4.5/9 |
10/0.5x2 or 15/0.75x2 |
20/1.0x2 or 30/1.5x2 |
1520 | 2000 | 1500 | 1200 | 900 | 315 | 30 | |||
| 12 | 2500 | 2000 | 1400 | 1100 | |||||||||||
| 15 | 3000 | 2500 | 1500 | 1200 | |||||||||||