HOIST KOREA
Double Girder Hoist
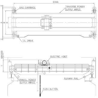
설치도면
표준사양
| Model | Capacity (ton) |
Max span(m) |
Life L(m) |
Speed(m/min) / Motor(Kw) | Approx, Dimensions(mm) | Travelling Wheel (mm) |
Runway Rail (kg/m) |
||||||||
|---|---|---|---|---|---|---|---|---|---|---|---|---|---|---|---|
| Hoisting | Traversing | Travelling | H | A | B | C | E | F | R | ||||||
| HKD-03 | 3 | 10 | 12 | 4.5/2.8 or 9/5.5 |
16/0.5 or 24/0.75 |
16/0.5x2 or 24/0.75x2 |
420 | 2500 | 2000 | 250 | 1200 | 60 | 950 | 160 | 15 |
| 15 | 3000 | 2500 | 200 | ||||||||||||
| 18 | 20/1.0x2 or 30/1.5x2 |
3500 | 3000 | 250 | |||||||||||
| HKD-05 | 5 | 15 | 4.2/4.2 or 5.6/5.5 |
510 | 3000 | 2500 | 1150 | ||||||||
| 18 | 3500 | 3000 | 22 | ||||||||||||
| 21 | 4000 | 3500 | |||||||||||||
| HKD-10 | 10 | 14.5 | 3/6 or 4.5/9 |
10/0.5 or 15/0.75 |
20/1.0x2 or 30/1.5x2 |
750 | 3100 | 2500 | 1550 | 315 | |||||
| 18 | 3600 | 3000 | |||||||||||||
| 21 | 4350 | 3500 | 350 | 100 | 400 | 30 37 |
|||||||||
| HKD-15 | 15 | 18 | 3/8.5 or 4.5/13 |
10/10 or 15/1.5 |
20/1.5x2 or 30/2.2x2 |
995 | 3850 | 3000 | 1900 | 1200 | |||||
| 21 | 4350 | 3500 | |||||||||||||
| 24 | 4850 | 4000 | 2300 | ||||||||||||
| HKD-20 | 20 | 15 | 2.8/11.5 or 4.2/17 |
1175 | 3850 | 3000 | 2000 | 1300 | |||||||
| 21 | 4450 | 3500 | 400 | 2300 | 500 | ||||||||||
| 24 | 4950 | 4000 | |||||||||||||
| HKD-30 | 30 | 9.5 | 1.8/11.5 or 2.8/17 |
10/1.0x2 or 15/1.5x2 |
1480 | 4450 | 3500 | 1800 | |||||||
| 15 | 20/2.2 or 30/3.7~5.5 |
5000 | 4000 | 630 | |||||||||||
| 27 | 5700 | 4500 | 2600 | 710 | |||||||||||